Marylebone Residence

A sensitive restoration of a Grade II Listed Beaux Arts residence in London
Brief. Considerations. Solution. Information. Important projects
that followed
Marylebone Residence.

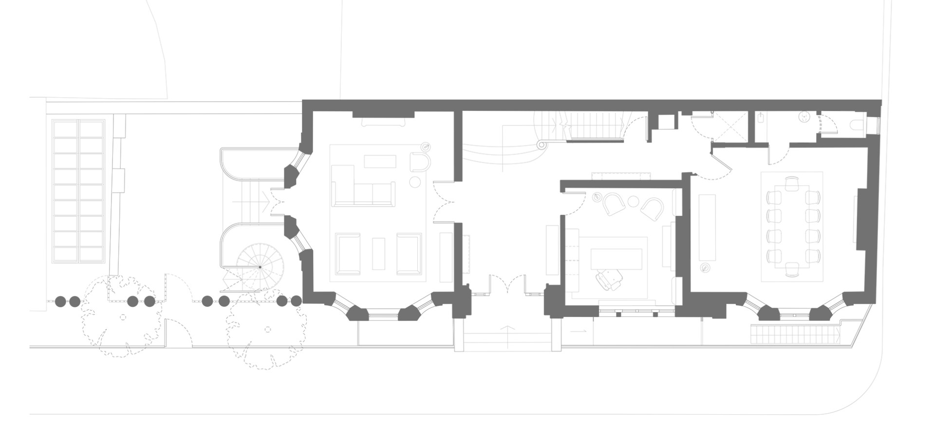
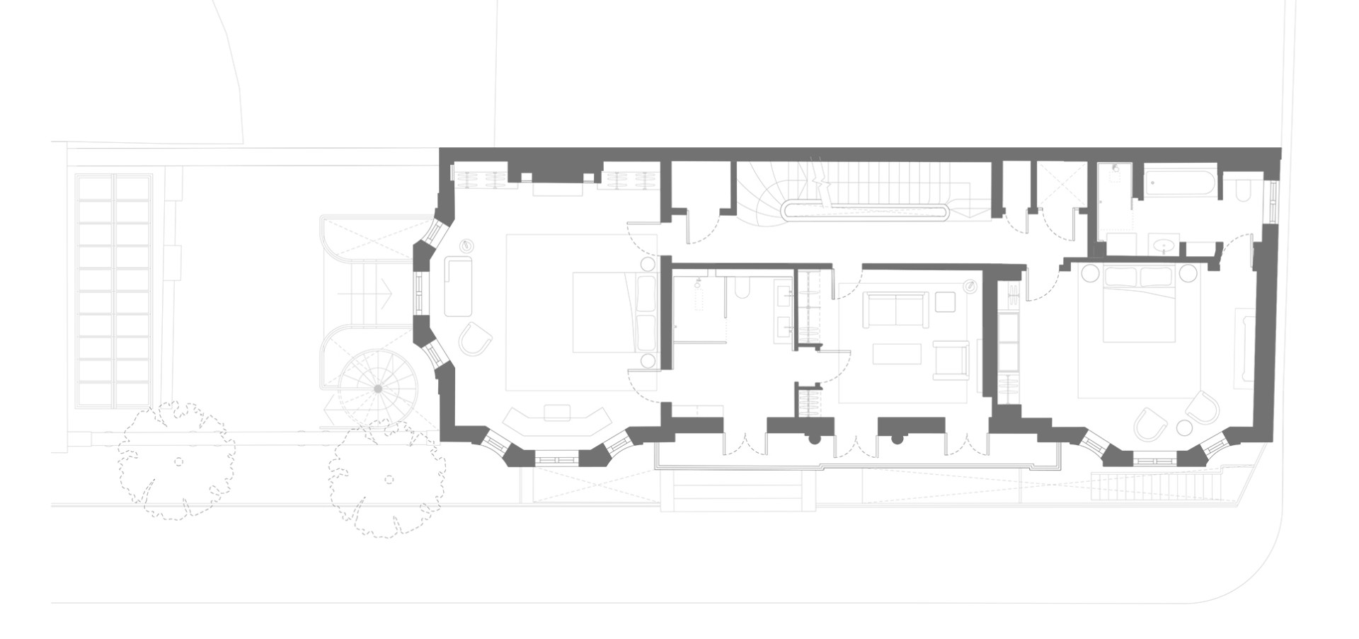
ArkleBoyce were commissioned to sensitively return this neglected Grade II Listed Beaux-Arts property to an elegant London family residence within a well-appointed central London city estate. Our approach looked to reinstate the former grandeur of the property, restoring existing fine detailing and introducing light-touch, complementary interventions to provide modern comforts.

Following a substantial period of un-occupancy, the historic fabric had fallen into a significant state of disrepair, particularly at lower ground and roof levels. ArkleBoyce focussed initially on a sensitive scope of external repairs including detailed repair works to Portland Stone facades, lead flashing and decorative metalwork alongside stripping back and relaying of existing roof materials and splice repair to windows throughout.

Aligned with external stabilising works, we worked closely alongside the client to deliver an internal repair and renovation scheme that retained historic character and layout whilst providing a warm and inviting, modern, living space for our client’s family.

Internal proposals have brought the opportunity to repair and conserve much of the handsome original detail whilst installing complementary new joinery and finishes throughout.

Type. One-off Houses
Client. Undisclosed
Location. Marylebone, London
Status. Complete
Size. 6,500 sq.ft
Photography. Peter Landers

Important projects that followed Marylebone Residence.

The Old School.

The Old School.

Clayworth.

Clayworth.

Kensington Garden Square.

Kensington Garden Square.

Great Guilford Street.

Great Guilford Street.